合肥装饰公司>合肥装修公司>办公室装修>厂房装修>展厅装修>办公楼设计装修 > 民宿/酒店 > 厵村民宿招商营销中心装修案例
项目类型:特色民宿装修设计
项目设计:半山装饰特色民宿设计部B组
项目面积:1200㎡
所在地:巢湖市黄麓镇
设计说明:
巢湖厵村精品民宿度假酒店是国家5A级旅游景区、国家生态旅游示范区规划、建设和运营,将其打造成一个集“自然风景观光区、精品民宿体验区、休闲娱乐引领区、健康养生康养区、企业发展拓展区、亲子游玩研学区、生态农业科教区”七大旅游产业于一体综合性一站式旅游目的地。
该民宿装修案例为度假酒店内部办公楼装修。设计师选用现代简约风,其着重点就在于简,即外形简洁,室内空间朴素、大方,但其功能性强。在选材上,运用了大量的天然古堡灰石材、原木色木饰面、灰色布艺硬包、黑色不锈钢线条及本色的不锈钢水波纹板等等。颜色没有任何花哨,简单明了,更加符合办公室的严谨要求,整体布局规划合理,格调简洁、素雅。

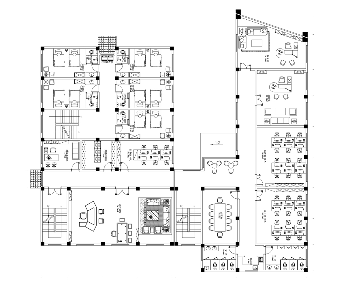
一层平面图

门厅效果图
门厅:此楼为员工独立办公楼使用,无需设置接待前台,入门直接为公司形象布景。色调以灰色为主色调,地面及墙面用古堡灰大理石铺贴,承重柱使用爵士白点缀,加上一些灯光,感觉端庄典雅。

沙盘区效果图

沙盘区360全景效果图
沙盘区:沙盘区展示整个园区模型,对面是员工休闲区,设计了水吧台及大面积酒柜,活力红的柜板,内藏灯带,温暖而活力四射,让安全感与刺激性并驾齐驱,是充满安心与值得托付的颜色。石膏板吊顶做凹凸造型,内嵌LED筒灯,简单而又区域分明。

二层平面图

接待区及茶台效果

办公区效果图

总经理办公室展开效果图
总经理办公室装修:此区域采用中国传统的室内设计,融合了庄重与优雅双重气质。室内有75m2,顶面石膏板满吊顶,没有做区域分隔,只是地面采用深灰、浅灰色大理石,以波导线做修饰。中式风格的古色古香与时髦的现代风格的天然联接,使生活的实用性和对传统文化的寻求同时得到了满意,这种绝妙的组合给人以激烈的视觉意志力,成为时髦与古典的柔媚结合。
安徽半山装饰工程有限公司是一家从事多年的室内设计装饰装修企业,具有总包叁级、装饰装修专项施工乙级以及工程设计专项资质,主要致力于办公室装修、写字楼装修、厂房装修、展厅装修、售楼部装修、样板间装修、民宿装修、店面店铺装修、学校装修、及其它商业空间装修设计施工一体化服务。咨询电话:18919604649
上一篇:巢湖厵村民宿特色餐厅装修设计
下一篇:日式民宿度假酒店装修