合肥装饰公司>合肥装修公司>办公室装修>厂房装修>展厅装修>办公楼设计装修 > 民宿/酒店 > 经典民宿装修之休案例闲餐厅
巢湖厵村精品民宿度假酒店7#、8#楼休闲餐厅装修案例
项目类型:民宿装修设计
项目设计:设计A组
项目面积:500㎡
所在地:巢湖市黄麓镇
设计说明:
巢湖厵村度假酒店是国家5A级旅游景区、国家生态旅游示范区规划、建设和运营,将其打造成一个集“自然风景观光区、精品民宿体验区、休闲娱乐***区、健康养生康养区、企业发展拓展区、亲子游玩研学区、生态农业科教区”七大旅游产业于一体综合性一站式旅游目的地。
该案例为度假酒店内部休闲餐厅。整个环境采用工业风,其最大的特点就是怀旧与年代感,具有很强的复古韵味。不加装饰的水泥墙,原有的木梁结构,精致灯光点缀,让人豁然开朗,空间感顿时增加许多。带有原木的踪迹的家具,能够完整地展现木纹的深浅与纹路变化,尤其是老旧木头更有质感,更能体现酒店“自然风光”的主题。

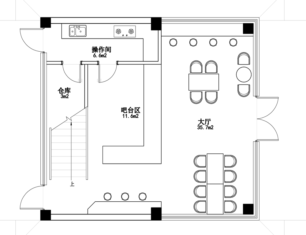
7#大厅平面图

7#大厅效果图

7#大厅效果图
保留原顶面设计,不做其它装饰,增加空间的宽阔感。吧台空间采用水泥加上老木头装饰板,给人一种年代感。麻绳灯具利用废旧的树枝加以装饰,使得整个空间更加贴近自然。

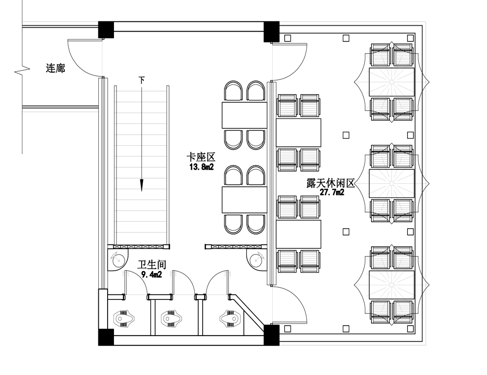
7#露台平面图

7#露台效果图

7#露台效果图
露台上采用原木廊架,是一种非常实用的景观存在,既可遮阳,也可用来装饰。防腐木地板,细竹装饰护栏,周围种上一圈绿植、鲜花、藤蔓装点,给人一种“采菊东篱下”式的情趣生活。

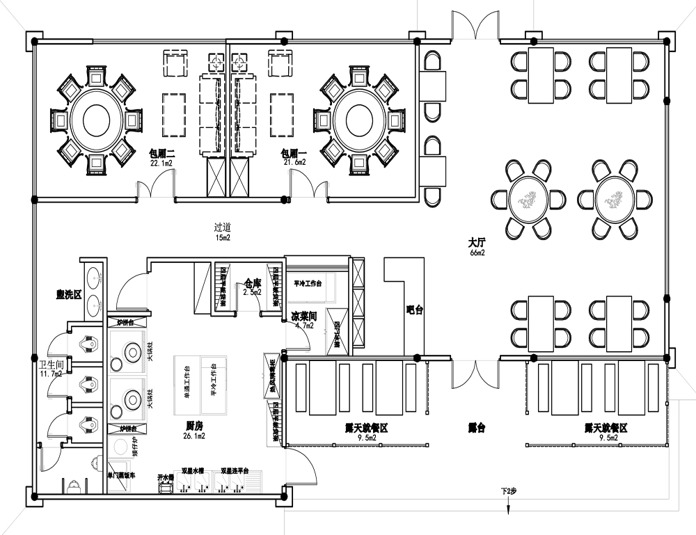
8#平面图

8#大厅效果图

8#大厅效果图
保留原顶面木梁结构,重新打磨,涂刷油漆。墙上大面做刷白处理,部分添加了木饰面,加上原木的家具,把回归自然的理念打造的非常清晰。
下一篇:旧房改造民宿案例分析