合肥装饰公司>合肥装修公司>办公室装修>厂房装修>展厅装修>办公楼设计装修 > 案例展示 > 办公楼/办公室装修 > 办公楼装修 > 厵村整栋2900m²自然原木风办公楼装修案例
项目类型:自然原木风办公楼装修设计 专业合肥办公室装修公司 合肥办公楼装修设计公司
项目设计:半山装饰办公空间设计部A组
项目面积:2900㎡
所在地:巢湖市黄麓镇
设计说明:
巢湖厵村度假酒店是国家5A级旅游景区、国家生态旅游示范区规划、建设和运营,将其打造成一个集“自然风景观光区、精品民宿体验区、休闲娱乐引领区、健康养生康养区、企业发展拓展区、亲子游玩研学区、生态农业科教区”七大旅游产业于一体综合性一站式旅游目的地。
该案例为度假酒店内部办公楼装修。意图打造一个宁静素雅的办公空间,没有张扬的艳丽也没有色彩的繁冗,有的只是处处透露的清新和淡雅,主要用到的材料有木饰面、艺术漆、装饰铁艺、大理石及装饰竹席等,充分使用东方的元素打造出一个沉稳内敛的氛围,装饰竹席和铁艺造型等装饰品将传统元素和现代元素相结合,以现代审美打造富有传统意味的自然风办公楼装修风格。

东立面外景效果图

西立面外景效果图

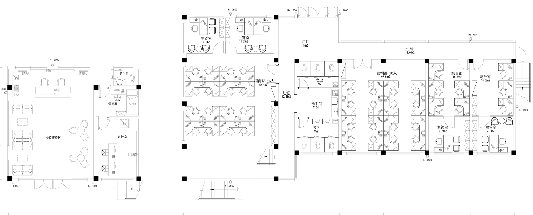
一层平面图

一层员工办公室效果图

一层员工办公室效果图

一层员工办公室实景图
员工办公区
双层石膏板吊顶,内嵌线条灯,没有多余复杂的造型,经理办公室采用双玻百叶隔断,不仅起到一定的隔离和遮挡作用,保护隐私,同时不影响采光和空间的透明感。整个设计上采用统一规范、简洁少装饰的手法,体现亲近、和谐的现代感。空间布局有对称的层次感,保障功能健全,突出现代办公环境讲究效率的特征。

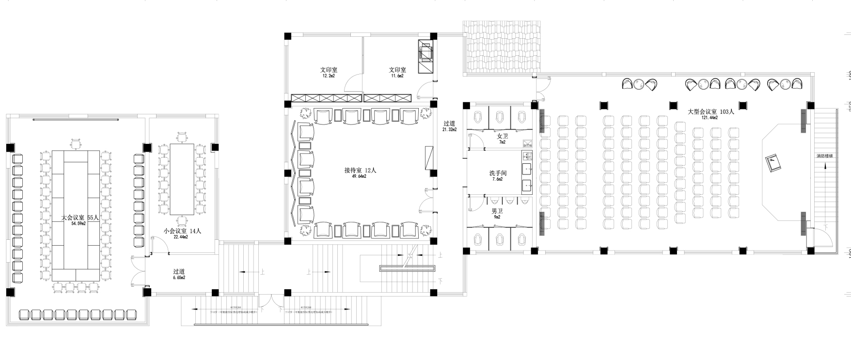
二层平面图

二层接待室效果图

二层接待室实景图
接待室
双层石膏吊顶暗藏灯带,采用实木线条走边,内嵌实木线条造型点缀,墙面皮质硬包装点。简单的空间格局,融合家庭式设计理念,借助柔软的沙发座椅,柔和的灯带……,构造舒适轻松的空间氛围,无形中拉近与来访者的距离,促进商业洽谈与合作的顺利推进。

二层会议室效果图

二层大会议室实景图
石膏板吊顶走边,暗藏LED淡黄色灯带,顶面实木线条做造型,整铺装饰竹席,墙面米色真石漆。整个色调简洁、明快。合适的色彩和装饰元素可以增强会议室的氛围和舒适性。

二层多功能厅效果图

二层多功能厅实景图
多功能厅
青钢龙骨双层石膏板边吊,原坡面屋顶保留,只做铁艺造型点缀。两边承重柱加实木木饰面装饰点缀,以弱化柱子突兀四角。墙面采用淡黄色艺术漆,为整个硬朗的空间添加一丝温馨。地面使用随州白麻整铺,同色35公分踢脚线,在设计风格中起到了统一装饰的作用。
安徽半山装饰工程有限公司是一家从事多年的室内设计装饰装修企业,具有总包叁级、装饰装修专项施工乙级以及工程设计专项资质,主要致力于办公室装修、写字楼装修、厂房装修、展厅装修、售楼部装修、样板间装修、民宿装修、店面店铺装修、学校装修、及其它商业空间装修设计施工一体化服务。咨询电话:18919604649