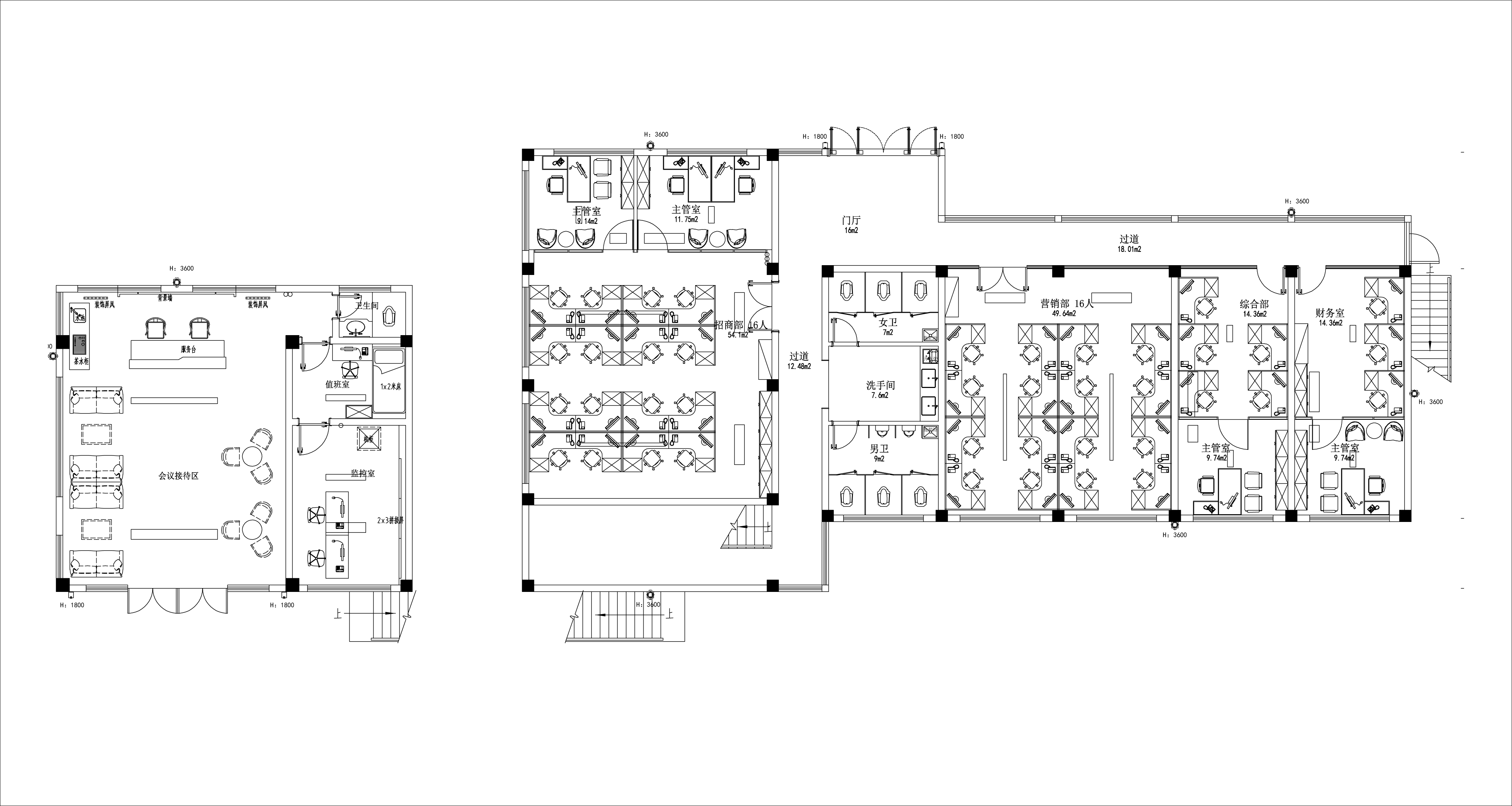
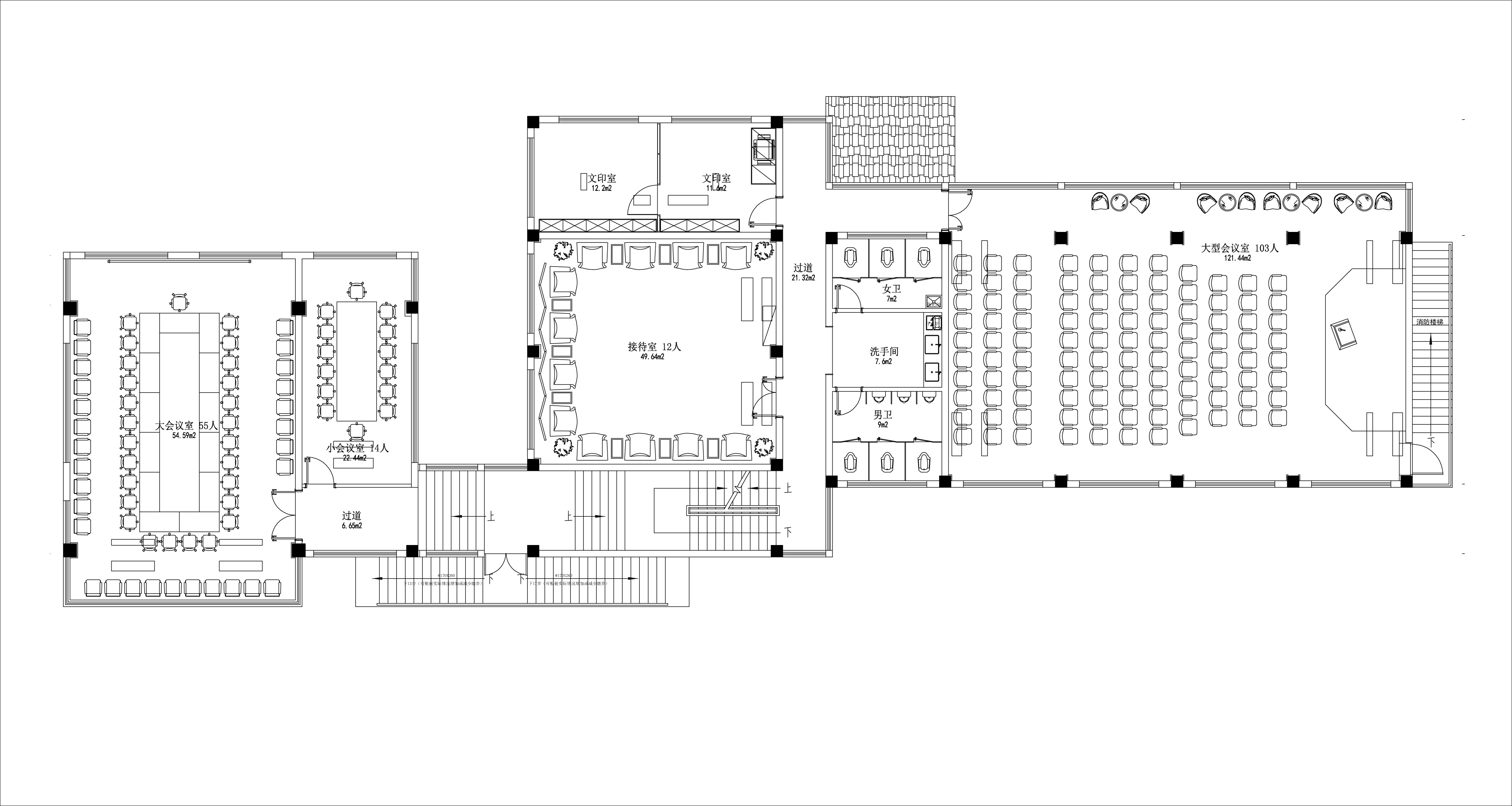
办公室布局是装修过程中的关键环节,它关乎到工作效率、员工舒适度以及公司整体形象。今天,半山装饰就带你了解一下办公室布局装修的要点:
一、明确功能区域
首先,需要明确办公室内的各个功能区域,如办公区、会议区、休息区、接待区等。每个区域的功能不同,因此在布局时要充分考虑其使用需求和特点,确保各个区域之间的合理划分和高效利用。
二、合理规划空间
在空间规划上,要根据公司的规模和员工数量来确定办公室的大小和布局。同时,要考虑到员工之间的交流和协作,避免过于拥挤或过于分散的布局。合理规划空间可以提高工作效率和员工满意度。

三、注重采光与通风
良好的采光和通风是办公室布局中不可忽视的要素。充足的自然光线可以提升员工的情绪和工作效率,而良好的通风则可以保持室内空气的新鲜和清洁。因此,在布局时要充分考虑窗户的位置和大小,以及通风设备的配置。

四、考虑人体工程学
人体工程学是办公室布局中的重要考虑因素。合理的座椅高度、屏幕距离、照明亮度等都可以减少员工的疲劳和不适,提高工作效率。因此,在布局时要充分考虑人体工程学的原理,为员工提供舒适、健康的办公环境。
五、注重美观与风格统一
除了实用性和功能性外,美观和风格统一也是办公室布局不可忽视的要点。要根据公司的文化和形象来选择合适的装修风格和色彩搭配,营造出一个既美观又符合公司形象的办公环境。
六、灵活性与可扩展性
随着公司的发展壮大,办公室布局也需要具备灵活性和可扩展性。因此,在布局时要充分考虑到未来的发展需求,预留出足够的空间和接口,以便未来能够轻松地进行调整和扩展。
综上所述,办公室布局装修要点包括明确功能区域、合理规划空间、注重采光与通风、考虑人体工程学、注重美观与风格统一以及灵活性与可扩展性。在装修过程中,需要综合考虑这些因素,打造出一个既实用又美观的办公环境。
安徽半山装饰工程有限公司是一家从事多年的室内设计装饰装修企业,具有总包叁级、装饰装修专项施工乙级以及工程设计专项资质,主要致力于办公室装修、写字楼装修、厂房装修、展厅装修、售楼部装修、样板间装修、民宿装修、店面店铺装修、学校装修、及其它商业空间装修设计施工一体化服务。咨询电话:18919604649
