合肥装饰公司>合肥装修公司>办公室装修>厂房装修>展厅装修>办公楼设计装修 > 售楼部/展厅 > 安徽武公警用装备有限公司展厅及办公室装修设计案例
项目地点:中国.安徽.合肥
项目性质:展厅装修设计
项目面积:1200㎡
主要材料:乳胶漆、铝方通、地毯
设计说明:
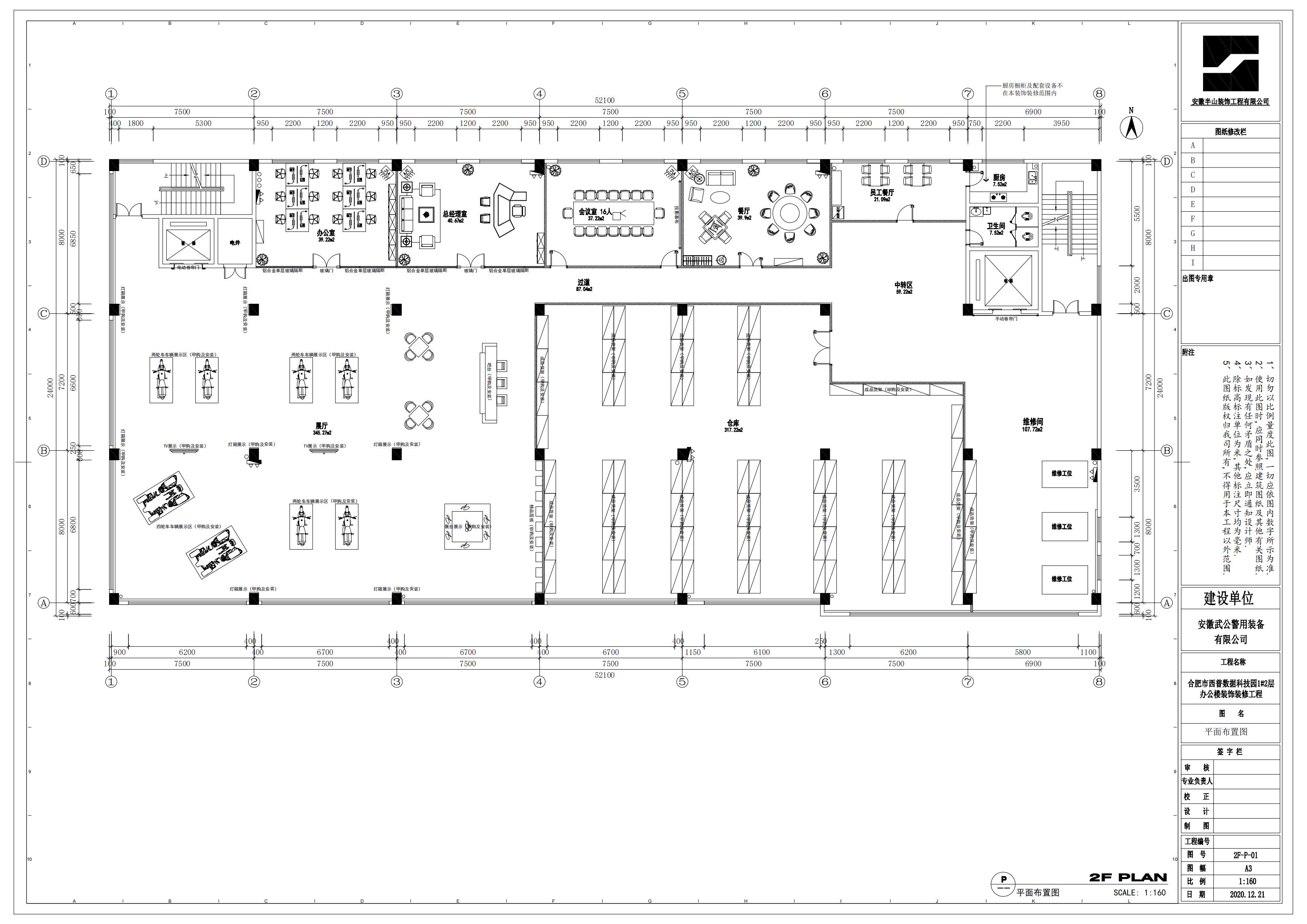
此展厅装修设计的主要作用是为企业提供摩托车产品及零配件的展示。安徽武公警用装备有限公司主要是做武装设备警用装备、服装、鞋帽、安全防护装备、安防排爆器材、消防救援设备等的销售。
现办公区域及展厅区域装修只有一年使用期,因此企业要求设计师结合现场,根据企业的实际情况,打造一个既简单实用又贴合企业文化的装修设计方案。该展厅装修项目运用现代工业风,以黑灰色为主,简单大方。
此次装修项目约有1200平方,项目内容有展厅区域装修设计、员工办公区、会议室、总经理室及仓库装修等,工期30天。

平面布置图
该项目为企业办公室及展厅装修,位于办公楼二层,设计师通过合理的空间布局规划、装修风格与材质选择、功能区设计细节等几个方面,细化办公室及展 厅装修的方案。

设计颜色主要以黑灰为主,黑色代表神秘与大气。摩托车展区设计的是立体梯台,顶面都用灰色乳胶漆粉刷,地面先是找平后铺设深灰地毯。吧台采用乳白色的木质吧台配上黑色铝方通的logo墙。吧台背景墙与吧台的logo板想呼应,都是黑色铝方通配上企业LOGO,正前方使用吊顶射灯凸显背景墙。

展厅区域设计师采用开放布局,开放布局打破传统封闭隔断,让展厅空间显得开阔大气,各区域间视线无阻,客户在接待区、洽谈区、展示区移动时能一览无余,感受整体连贯氛围,避免局促压抑感。

顶面双层石膏板吊顶走边,内部黑色铝方通填充,地面使用块毯,在展厅内设置有休息与交流区,摆放沙发、茶几和饮水机等设施,为参观者提供休息和交流的场所。



总经理室办公桌应摆放在空间显眼且采光良好的位置,靠近窗户,保证充足自然光线,同时方便总经理观察室内外情况。办公桌尺寸根据空间大小选择,配备符合人体工学的办公椅,保证长时间办公的舒适度。
接待重要客户、合作伙伴或下属汇报工作。接待区设置在靠近入口处,方便人员进出。一般配置沙发、茶几,沙发可选择 3 人位加 2 个单人位的组合,茶几尺寸根据沙发大小选择。

仓库顶面原顶面灰色乳胶漆喷涂,地面采用地坪漆工艺。
安徽半山装饰工程有限公司是一家从事多年的室内设计装饰装修企业,具有总包叁级、装饰装修专项施工乙级以及工程设计专项资质,主要致力于办公室装修、写字楼装修、厂房装修、展厅装修、售楼部装修、样板间装修、民宿装修、店面店铺装修、学校装修、及其它商业空间装修设计施工一体化服务。
咨询电话:18919604649