合肥装饰公司>合肥装修公司>办公室装修>厂房装修>展厅装修>办公楼设计装修 > 办公楼/厂房 > 巢湖英和科技6000平方办公楼装修
项目类型:现代简约风办公室装修
项目设计: 半山装饰办公空间设计部B组 专业合肥办公室装修公司 合肥办公楼装修设计公司
项目面积:6000㎡
所在地:安徽·巢湖
主要材料:古堡灰大理石、玻化砖、木饰面等
设计说明:
本办公楼装修设计项目位于安徽巢湖经济开发区花山工业园内,位置优越,交通便利,主要生产电力电子器件、电力电容器、储能电容器、高低压开关电器、高低压成套设备、电力无功补偿设备、智能监测设备、电能质量设备、通讯设备、电力自动化设备以及相关软件的研发、设计、系统集成、生产、销售及技术服务。
结合建筑的既有特性和产品特征,设计师以新锐的时尚艺术平衡其中,用理性的思维,诗意的表达。旨在为业主打造出一个充满现代感而又不失时尚格调、追求极致的现代化办公空间。

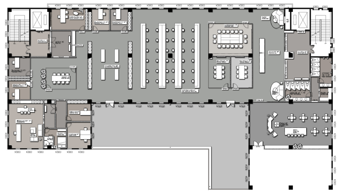
平面布置图

接待厅服务台角度效果
走进空间,驻足于接待区域前,第一眼映入眼帘的便是那现代和中式结合的形象背景墙,上半部以石材石片做层峦叠嶂的山峰,下部用实木木方勾勒出水中上部山的倒影景像,新中式与现代完美配合,上下两组形状,一深一浅,天地呼应,互为依托,极具禅意。
开放员工办公区角度效果
员工办公区域采用开放敞开式,最大化利用了空间和光线,顶面搭配工业风的吊灯,地面浅灰色地毯,让空间充满时尚舒适的氛围。
接待室角度效果
玻璃是人类一项伟大的发明,接待室在本案中作为共享式的空间,正运用了四面玻璃作为隔断形式,获得更通透的视野,同时也借助了更多的自然光。
茶水间接待区角度效果
茶水间接待区简洁大方,家具运用了不对称围合布置,采用亮蓝色茶水柜作为空间点缀色,加强空间节奏感,使得空间更为层次分明的同时,也烘托出柔和的舒适氛围,给人以放松安静的感觉。

总经理办公室
董事长办公室角度效果
墙面运用硅澡泥突出肌理,配以家具木饰面,皮质,金属细腻的质感,凸显办公室档次和舒适性,空间色调柔和时尚彰显业主品味。合肥装修公司
安徽半山装饰工程有限公司是一家从事多年的室内设计装饰装修企业,具有总包叁级、装饰装修专项施工乙级以及工程设计专项资质,主要致力于办公室装修、写字楼装修、厂房装修、展厅装修、售楼部装修、样板间装修、民宿装修、店面店铺装修、学校装修、及其它商业空间装修设计施工一体化服务。咨询电话:18919604649
合肥装修公司 合肥工装公司