合肥装饰公司>合肥装修公司>办公室装修>厂房装修>展厅装修>办公楼设计装修 > 办公楼/厂房 > 合肥包河区1800㎡设计施工一体办公室装修项目
项目类型:办公室装修 专业合肥办公室装修公司 合肥办公楼装修设计公司
项目设计:半山装饰办公室设计部C组
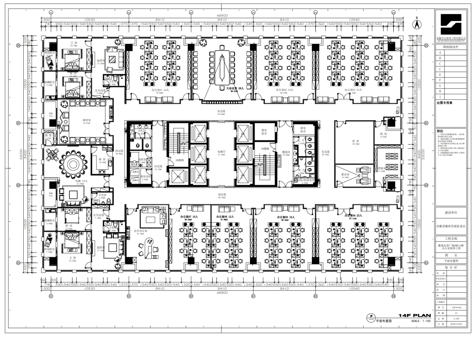
项目面积:1800㎡
所在地:安徽·合肥市
设计说明:
本项目为1800平方现代简约风办公室装修设计项目,项目位置合肥包河区。
本办公室装修设计时,设计师大量采用了现代手法,大面积的使用浅色木饰面、素色墙布,另外加了一些玻璃砖及石材做点缀,整个空间更加清爽,自然。
这种风格的办公室注重简洁、实用和高效,能够为员工创造一个舒适、轻松的工作环境。
本次方案展示中,偏重于各个工作空间的展示,例如会议室、接待室、包厢区域,设计师通过简化线条、色彩和空间布局,使各个区域更加宽敞明亮。设计师摒弃了繁琐的装饰和复杂的造型,让人们在视觉上得到放松。

施工平面图

电梯厅
顶面采用双层石膏板吊顶,暗藏灯带,内置装饰筒灯增加亮度。
地面满铺750*1500灰色仿石材地砖,它具有环保健康、耐用性强、维护简便、色彩丰富、透水性好,而且与石材相比成本更低。
墙面采用瓷砖干挂工艺,这种施工方法施工速度快、耐磨性强、担高整体的平整度及美观度。
过道
该项目过道尺寸 2米宽,设计师在过道设计时采用深浅双色地砖拼接。
顶面双层石膏板造型顶,两边安装反光灯槽,加设轨道灯装饰,轨道灯具有灵活性与可调节性、维修方便等优点。适用于多种空间,包括家庭、办公室、博物馆、画廊等。是近几年使用比较频繁的灯具之一。

会议室
会议室是一个用于举行会议和讨论的场所,是企业的重要设施之一。一个好的会议室应该是舒适、宽敞、明亮,并能提供必要的设备和基础设施。应该具备良好的声音隔断和隐私保护,确保会议内容不会被外界干扰。

接待室
此项目接待室45m2 ,运用现代简约风格。
浅色木纹木饰面墙板及米色布艺硬包装饰墙面,美观实用,另加上灯带的点缀,视觉效果更上档次。

经理室
顶面采用双层石膏板制作,内藏轨道灯,辅助筒灯照明,没有加设主灯,提升空间美感,增强空间层次感。
地面铺设实木复合地板。实木复合地板以实木为表层,保留了天然木材的纹理与触感,外观优雅,透露出尊贵与品味
耐磨性强、安装便捷、质量稳定、环保性强且外观与质感俱佳。
场景中大量运用浅色木饰面装饰,营造出温馨、自然的家居氛围。
起居室
起居室可以灵活用于会议、休息或临时工作,满足不同需求。
设计师采用墙面满贴墙布,环保、美观,为起居空间带来温馨舒适的氛围。

包厢
该包厢面积52m2 ,顶面采用双层石膏板吊顶,内嵌玫瑰金不锈钢,层次分明;
顶面圆形造型顶,内嵌灯带,与圆桌相呼应。
墙面定制布艺硬包,美观大方、质感舒适,增添一份温暖和舒适感。
安徽半山装饰工程有限公司是一家从事多年的室内设计装饰装修企业,具有总包叁级、装饰装修专项施工乙级以及工程设计专项资质,主要致力于办公室装修、写字楼装修、厂房装修、展厅装修、售楼部装修、样板间装修、店面店铺装修、学校装修、及其它商业空间装修设计施工一体化服务。
咨询电话:18919604649